| Universalienforschung für: Text Bild Exzess, Gruppenausstellung, Galerie Nord, Berlin 2019 |
|
 |
|
|
 |
|
|
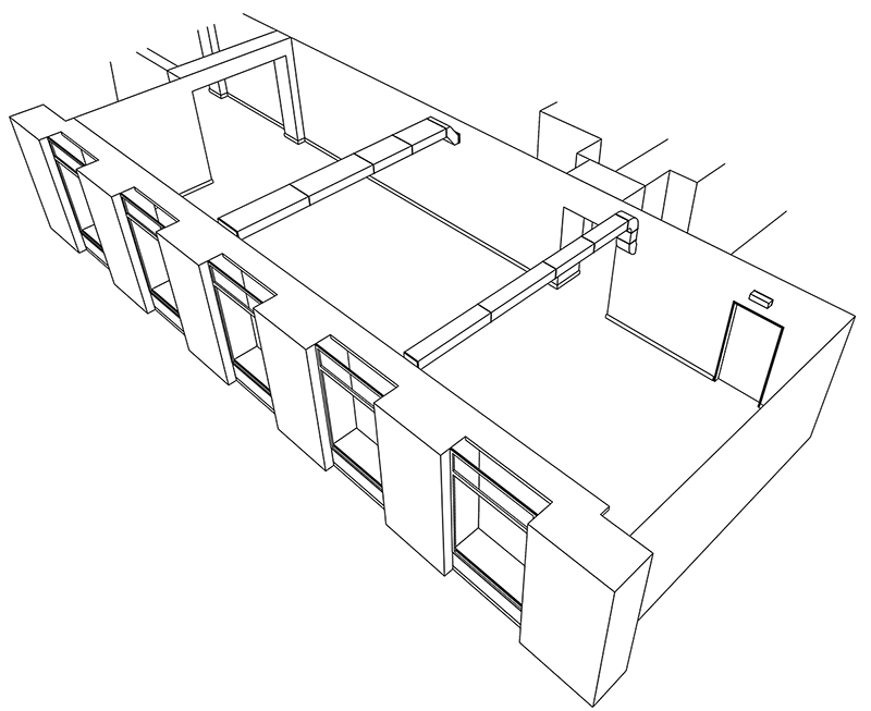
| 3D-Modell: im Vorlauf entstandene Ansichten des 3D-Modells der Galerie Nord |
Seiten 1 / 2 / 3 |
 |
 |
|
|
|
 |
|
|
 |
|
|
| Blick von oben in das 3D-Modell (ohne Decke) vom Kunstverein Tiergarten |
|
|
 |
|
|
 |
|
|
 |
|
|
| Blick in den mir "zugeteilten" Raum... |
|
|
 |
|
|
 |
|
|
 |
|
|
| Der sogenannte Video-Raum bzw. der zweite Eingang... |
|
|
 |
|
|
 |
|
|
 |
|
|
| Lichtstudie mit Overheadprojektor vor dem Videoraum |
|
|
 |
|
|
 |
|
|
 |
|
|
| Lichtstudie mit zwei Overheadprojektoren |
|
|
 |
|
|
 |
|
|
 |
|
|
| Erste Anordnung der "Stationen" im Raum |
|
|
 |
|
|
 |
|
|
|
|
|
|